Dịch vụ lắp đặt phòng xông hơi tại Huế, phù hợp cho gia đình, spa và khách sạn. Tìm hiểu quy trình thi công, vật liệu và các giải pháp thiết kế an toàn, hiện đại.
Lợi ích khi sở hữu phòng xông hơi
Thành phố Huế, với nhịp sống chậm rãi và không gian yên bình, luôn là nơi con người tìm về để tìm thấy sự tĩnh tại trong tâm hồn. Tuy nhiên, cùng với sự phát triển của du lịch và kinh tế, nhịp sống tại đây cũng đang dần trở nên bận rộn hơn. Sau một ngày làm việc, học tập hay khám phá những di sản văn hóa, nhu cầu thư giãn và phục hồi năng lượng là vô cùng cần thiết.
Giờ đây, việc sở hữu một phòng xông hơi không còn chỉ là một đặc quyền của các khu nghỉ dưỡng cao cấp mà đã trở thành một khoản đầu tư thông minh cho sức khỏe ngay tại chính ngôi nhà của mình. Một phòng xông hơi được thiết kế tinh tế sẽ không chỉ mang lại giá trị sử dụng mà còn làm tăng thêm vẻ đẹp, sự sang trọng và tiện nghi cho không gian sống, hòa hợp với kiến trúc truyền thống và vẻ đẹp cổ kính của Huế.
Bài viết này sẽ là kim chỉ nam giúp bạn hiểu rõ về các loại phòng xông hơi, những lợi ích tuyệt vời mà chúng mang lại và các kinh nghiệm thực tế để sở hữu một không gian thư giãn lý tưởng tại Thừa Thiên Huế xinh đẹp.
Vai trò và lợi ích của phòng xông hơi trong cuộc sống hiện đại
Phòng xông hơi là một giải pháp thư giãn hiệu quả với nhiều vai trò và lợi ích vượt trội:
- Lợi ích sức khỏe: Quá trình xông hơi giúp cơ thể đổ mồ hôi, đào thải độc tố, làm sạch sâu lỗ chân lông, từ đó giúp da trở nên mịn màng và tươi trẻ hơn. Xông hơi còn giúp tăng cường lưu thông máu, hỗ trợ tim mạch và cải thiện chức năng hô hấp, đặc biệt hiệu quả trong việc giảm các triệu chứng cảm lạnh, viêm xoang, vốn thường gặp trong khí hậu đặc trưng của Huế.
- Lợi ích tinh thần: Nhiệt độ và hơi nóng từ phòng xông hơi giúp các cơ bắp mệt mỏi được thư giãn hoàn toàn, làm dịu các cơn đau nhức. Hơn nữa, việc dành thời gian tĩnh lặng trong phòng xông giúp giải tỏa căng thẳng, lo âu, mang lại cảm giác bình yên và cải thiện đáng kể chất lượng giấc ngủ.
- Giá trị không gian sống: Một phòng xông hơi được thiết kế tinh tế không chỉ mang lại giá trị sử dụng mà còn làm tăng tính thẩm mỹ, sự sang trọng và tiện nghi cho ngôi nhà của bạn, đặc biệt phù hợp với những căn nhà mang phong cách kiến trúc Huế truyền thống.

3. Các loại phòng xông hơi được ưa chuộng tại Huế
Để lựa chọn phòng xông hơi phù hợp, bạn cần tìm hiểu kỹ về đặc điểm của từng loại, kết hợp với phong cách kiến trúc đặc trưng của Cố đô.

Phòng xông hơi khô (Sauna):
-
- Nguyên lý: Sử dụng máy xông hơi làm nóng đá sauna, nhiệt độ phòng lên tới 70−90°C, độ ẩm thấp.
- Chất liệu: Thường được làm bằng gỗ thông Phần Lan, gỗ tuyết tùng hoặc Hemlock, mang lại vẻ đẹp tự nhiên và hương thơm dễ chịu, rất phù hợp với phong cách nội thất mộc mạc, gần gũi của nhiều ngôi nhà ở Huế.
- Ưu & nhược điểm: Hiệu quả cao trong việc đào thải độc tố, giảm cân. Tuy nhiên, nhiệt độ cao có thể không phù hợp với tất cả mọi người.

Phòng xông hơi ướt (Steam Room):
-
- Nguyên lý: Máy xông hơi tạo hơi nước nóng, nhiệt độ khoảng 40−50°C, độ ẩm gần .
- Ưu & nhược điểm: Rất tốt cho hệ hô hấp, làm ẩm da, tóc. Tuy nhiên, độ ẩm cao cần hệ thống thoát nước tốt và bảo dưỡng thường xuyên hơn.

Phòng xông hơi hồng ngoại (Far Infrared Sauna):
-
- Nguyên lý: Sử dụng tia hồng ngoại để làm nóng trực tiếp cơ thể, không làm nóng không khí.
- Ưu & nhược điểm: Nhiệt độ dễ chịu hơn (45−60°C), thẩm thấu sâu vào cơ bắp, xương khớp, phù hợp với người cao tuổi và những người nhạy cảm với nhiệt độ cao.

Phòng xông hơi kết hợp (Combo):
-
- Nguyên lý: Tích hợp cả hai chế độ xông khô và xông ướt trong cùng một không gian, mang lại sự linh hoạt tối đa.
- Ưu & nhược điểm: Đa năng, phù hợp với mọi nhu cầu của gia đình và spa. Chi phí đầu tư ban đầu cao hơn các loại phòng đơn.

Phòng xông hơi đá muối Himalaya
- Đặc trưng: Thành vách và sàn được ốp bằng các khối muối đá Himalaya chứa hơn 80 khoáng chất quý, khi được làm nóng sẽ giải phóng ion âm có lợi cho sức khỏe.
- Ưu điểm: Giúp thanh lọc không khí, tăng cường miễn dịch, hỗ trợ điều hòa huyết áp, giảm viêm khớp, đồng thời mang lại cảm giác thư giãn sâu và cải thiện chất lượng giấc ngủ.

Phòng xông hơi thảo dược
- Đặc trưng: Sử dụng các loại thảo dược tự nhiên (như sả, gừng, quế, bạc hà…) đun sôi để tạo hơi nước, mang hương thơm dịu nhẹ và tinh dầu tự nhiên.
- Ưu điểm: Hơi thảo dược giúp thư giãn tinh thần, hỗ trợ giải cảm, giảm căng thẳng, thanh lọc cơ thể và cải thiện hệ hô hấp nhờ các tinh chất từ thảo mộc.

Với sự đa dạng này, khách hàng có thể dễ dàng lựa chọn loại phòng xông hơi phù hợp nhất với nhu cầu: từ giảm cân, làm đẹp, thư giãn tinh thần cho đến hỗ trợ điều trị các vấn đề sức khỏe.
4. Vật liệu & thiết bị cấu thành một phòng xông hơi chất lượng
Một phòng xông hơi bền đẹp và an toàn phụ thuộc vào chất lượng của từng bộ phận.
- Vật liệu xây dựng:
- Gỗ: Gỗ thông Phần Lan, gỗ tuyết tùng là lựa chọn hàng đầu cho phòng xông khô nhờ khả năng chịu nhiệt, chống ẩm và độ bền cao.
- Kính cường lực: Thường được sử dụng cho phòng xông ướt, đảm bảo độ trong suốt, chịu nhiệt và an toàn khi sử dụng.
- Đá: Đá sauna chuyên dụng, giữ nhiệt tốt, được dùng trong máy xông hơi khô.
- Thiết bị cốt lõi:
- Máy xông hơi: “Trái tim” của phòng xông, quyết định hiệu suất và độ bền. Có hai loại chính là máy xông khô và máy xông ướt.
- Bộ điều khiển: Dùng để điều chỉnh nhiệt độ, thời gian và các chế độ xông hơi, thường được lắp đặt ở mặt ngoài phòng xông.
- Máy tạo hơi: Dùng cho phòng xông ướt, biến nước thành hơi nóng và đẩy vào phòng.
- Phụ kiện đi kèm:
- Ghế xông hơi: Được thiết kế tối ưu, có thể là ghế đơn, ghế băng dài tùy theo kích thước phòng.
- Đèn phòng xông: Chịu nhiệt, chống ẩm, tạo không gian thư giãn.
- Hộp hương liệu: Dùng để chứa tinh dầu thảo dược, giúp tăng hiệu quả thư giãn, giải cảm.
- Cảm biến nhiệt độ: Đảm bảo nhiệt độ luôn được kiểm soát an toàn.
5. Kích thước & kiểu dáng phòng xông hơi phổ biến
Để có trải nghiệm tốt nhất, việc chọn kích thước và kiểu dáng phòng xông hơi cần phù hợp với không gian thực tế.
- Phòng mini (1-2 người): Phù hợp với các căn hộ chung cư hoặc nhà phố có diện tích hạn chế. Kích thước phổ biến: 1000x1000x2100mm.
- Phòng gia đình (3-5 người): Lựa chọn lý tưởng cho các gia đình muốn sử dụng cùng lúc. Kích thước phổ biến: 1500x1500x2100mm đến 2000x1500x2100mm.
- Phòng spa/khách sạn (từ 5 người trở lên): Dành cho các không gian kinh doanh, có thể được thiết kế tùy chỉnh theo diện tích.

6. Dịch vụ lắp đặt phòng xông hơi trọn gói tại Huế
Tuấn Kiệt tự hào là thương hiệu uy tín trong lĩnh vực nhập khẩu, sản xuất, thiết kế và thi công lắp đặt phòng xông hơi trọn gói tại Huế. Với hơn 10 năm kinh nghiệm, chúng tôi đã đồng hành cùng hàng trăm khách hàng cá nhân, spa, khách sạn và khu nghỉ dưỡng tại nhiều tỉnh thành, mang đến những công trình chất lượng và bền vững.
Các dòng phòng xông hơi mà Tuấn Kiệt đang triển khai tại Huế vô cùng đa dạng, phù hợp với từng nhu cầu:
- Phòng xông hơi khô (gỗ Hemlock, Thông Phần Lan, Hinoki Nhật Bản).
- Phòng xông hơi ướt với kính cường lực cao cấp, thiết kế hiện đại.
- Phòng xông hơi hồng ngoại hỗ trợ trị liệu, giảm căng thẳng.
- Phòng xông hơi đá muối Himalaya – liệu pháp detox, chăm sóc toàn diện.
- Phòng xông hơi Jjimjilbang Hàn Quốc và Onsen Nhật Bản cho khu nghỉ dưỡng.
- Phòng xông hơi cao cấp dành cho khách sạn, resort, phòng gym.
- Và các giải pháp thiết kế theo yêu cầu riêng của khách hàng.
Các phòng xông hơi của Tuấn Kiệt được chúng tôi trực tiếp sản xuất tại xưởng hoặc nhập khẩu nguyên chiếc, thiết bị chính hãng từ những quốc gia có truyền thống lâu đời về xông hơi như Phần Lan, Canada, Nhật Bản… Nhờ vậy, khách hàng luôn yên tâm về nguồn gốc xuất xứ và chất lượng đạt chuẩn quốc tế.
Trong quá trình thi công, Tuấn Kiệt ưu tiên sử dụng các vật liệu cao cấp:
- Kính cường lực an toàn, độ bền cao, đảm bảo tính thẩm mỹ và khả năng chịu nhiệt.
- Gỗ nhập khẩu chính ngạch như gỗ Hemlock Canada, gỗ Thông trắng Phần Lan, gỗ Hinoki Nhật Bản… Những loại gỗ này không chỉ có đường vân đẹp, màu sắc đồng đều mà còn tỏa hương thơm dịu nhẹ, tinh dầu tự nhiên giúp tăng hiệu quả trị liệu trong quá trình xông hơi.
Bên cạnh đó, Tuấn Kiệt luôn cam kết chế độ bảo hành dài hạn và bảo trì tận nơi, sẵn sàng hỗ trợ khách hàng xử lý mọi vấn đề phát sinh trong suốt quá trình sử dụng. Đây chính là cam kết tạo nên sự yên tâm tuyệt đối cho người dùng.
Không chỉ dừng lại ở dịch vụ phòng xông hơi, Tuấn Kiệt còn cung cấp và thi công trọn gói các hạng mục cao cấp khác trong phòng tắm, bao gồm:
- Thiết kế và lắp đặt bồn tắm massage tại Hải Phòng: Các sản phẩm nhập khẩu từ những thương hiệu châu Âu uy tín như Euroking, Nofer… Chất liệu Acrylic cao cấp giúp bồn tắm bền đẹp, dễ vệ sinh, hạn chế bám bẩn. Nhiều mẫu thiết kế hỗ trợ lắp âm tường, âm sàn, tối ưu diện tích và mang lại vẻ sang trọng cho không gian.
- Thi công bể sục, bể bơi gia đình và khu nghỉ dưỡng: Với chất liệu sứ tráng men hoặc Acrylic có tuổi thọ hàng chục năm, các công trình này mang lại không gian thư giãn tiện nghi, đẳng cấp cho gia đình, khách sạn và resort từ 3 sao trở lên.
Với hơn một thập kỷ kinh nghiệm và hàng ngàn công trình đã hoàn thiện, Tuấn Kiệt tự hào nhận được sự tin tưởng từ đông đảo khách hàng nhờ chất lượng sản phẩm vượt trội cùng dịch vụ hậu mãi tận tâm. Chúng tôi xây dựng quy trình làm việc minh bạch, khoa học và tối ưu, giúp mỗi dự án được triển khai nhanh gọn, đúng tiến độ và đạt hiệu quả cao nhất.
7. Quy trình lắp đặt phòng xông hơi trọn gói tại Thành phố Huế
Tuấn Kiệt tự hào mang đến quy trình thi công chuyên nghiệp, được xây dựng trên nền tảng kinh nghiệm hơn 10 năm, đảm bảo mỗi công trình đều đạt chất lượng cao nhất và sự hài lòng tuyệt đối của khách hàng.
- Tư vấn chuyên sâu và Khảo sát thực tế
Ngay khi nhận được yêu cầu, chúng tôi sẽ lắng nghe chi tiết nhu cầu, ngân sách và không gian của bạn. Đội ngũ chuyên gia của Tuấn Kiệt sẽ đến tận nơi tại Quảng Ngãi để khảo sát, đo đạc tỉ mỉ. Chúng tôi sẽ đánh giá hệ thống điện, nước, và các yếu tố kỹ thuật khác để đưa ra giải pháp tối ưu, phù hợp với đặc thù ngôi nhà hoặc spa của bạn. - Thiết kế bản vẽ chi tiết (2D/3D) và Báo giá minh bạch
Dựa trên dữ liệu khảo sát, các kiến trúc sư của chúng tôi sẽ thiết kế bản vẽ 2D và 3D. Bản vẽ này không chỉ giúp bạn hình dung không gian một cách chân thực mà còn là cơ sở để chúng tôi lập báo giá chi tiết, công khai và minh bạch. Báo giá này liệt kê rõ ràng từng hạng mục từ vật liệu, thiết bị, phụ kiện đến chi phí nhân công, đảm bảo không có chi phí phát sinh ẩn.
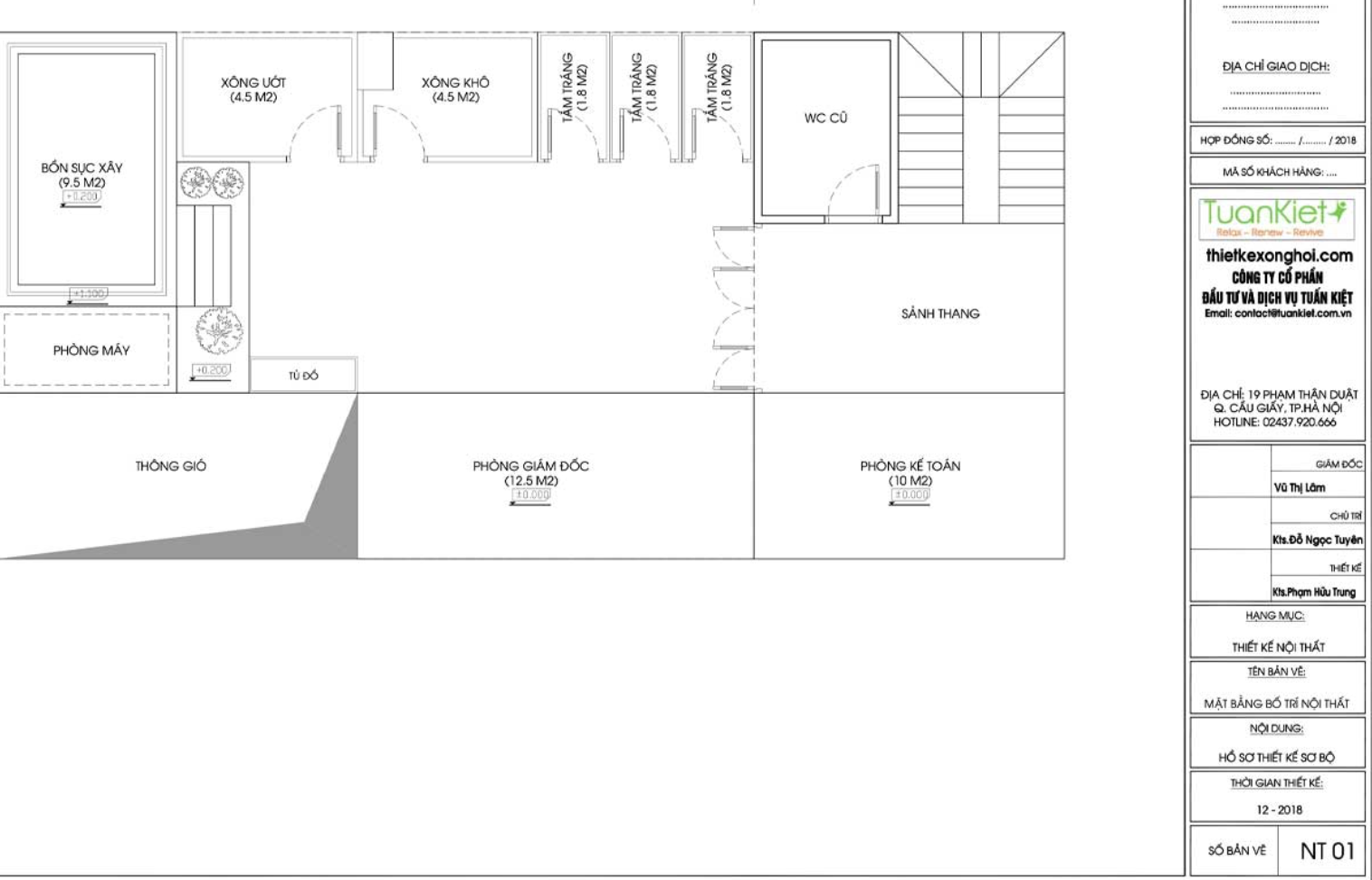
Bản thiết kế chi tiết khu xông hơi của đơn vị Tuấn Kiệt - Thi công và lắp đặt tỉ mỉ
Sau khi bản vẽ và báo giá được duyệt, đội ngũ thợ lành nghề, giàu kinh nghiệm của chúng tôi sẽ tiến hành thi công. Mọi công đoạn từ lắp đặt khung, vách, đi dây điện đến lắp đặt máy xông hơi và phụ kiện đều được thực hiện theo đúng bản vẽ, tuân thủ nghiêm ngặt các tiêu chuẩn kỹ thuật và an toàn, đảm bảo sự bền đẹp cho công trình. - Vận hành thử nghiệm và Hướng dẫn sử dụng
Khi công trình hoàn thành, chúng tôi sẽ tiến hành vận hành thử nghiệm toàn bộ hệ thống để đảm bảo mọi chức năng hoạt động trơn tru, ổn định. Sau đó, chúng tôi sẽ trực tiếp bàn giao và hướng dẫn chi tiết cách sử dụng, bảo trì, giúp bạn khai thác tối đa hiệu quả của phòng xông hơi.
8. Những lưu ý quan trọng khi lắp đặt phòng xông hơi tại nhà
Để đảm bảo phòng xông hơi hoạt động hiệu quả và an toàn, bạn nên lưu ý các điểm sau:
- Vị trí: Chọn vị trí có kết cấu vững chắc, gần nguồn điện và nước. Đối với phòng ướt, cần có hệ thống thoát nước tốt.
- Điện, nước, thoát khí: Lắp đặt riêng hệ thống điện cho phòng xông hơi để đảm bảo tải trọng và an toàn. Đối với phòng ướt, cần có đường ống cấp và thoát nước. Hệ thống thông gió cần được thiết kế khoa học để không gian luôn thoáng khí.
- An toàn & tuổi thọ: Chọn thiết bị chính hãng, có chứng nhận an toàn. Tuân thủ hướng dẫn sử dụng và bảo trì định kỳ để tăng tuổi thọ sản phẩm.
- Cân nhắc ngân sách: Xác định rõ ngân sách và nhu cầu để chọn loại phòng, vật liệu và thiết bị phù hợp, tránh lãng phí.
9. Báo giá lắp đặt phòng xông hơi tại Huế (tham khảo)
Chi phí lắp đặt phòng xông hơi tại Huế phụ thuộc vào nhiều yếu tố như: loại phòng, kích thước, vật liệu, thiết bị đi kèm và chi phí thi công. Dưới đây là bảng giá tham khảo giúp bạn dễ dàng hình dung.
- Gói cơ bản: Chi phí thấp, phù hợp với cá nhân hoặc gia đình có ngân sách hạn chế.
- Gói gia đình: Chi phí trung bình, sử dụng vật liệu và thiết bị cao cấp hơn, phù hợp với gia đình muốn sử dụng lâu dài.
- Gói spa/khách sạn: Chi phí cao hơn, dành cho các công trình kinh doanh với yêu cầu thẩm mỹ và công suất lớn.
Tuấn Kiệt cam kết mang đến báo giá minh bạch, rõ ràng, giúp bạn hoàn toàn chủ động trong quyết định đầu tư.
10. Vì sao nên chọn Tuấn Kiệt để lắp đặt phòng xông hơi tại Huế?
Với kinh nghiệm hơn 10 năm trong ngành và hàng ngàn dự án thành công trên khắp Việt Nam, Tuấn Kiệt tự hào là đơn vị uy tín và đáng tin cậy. Chúng tôi cam kết:
- Sản phẩm chính hãng: 100% thiết bị nhập khẩu từ các thương hiệu hàng đầu thế giới, có đầy đủ giấy tờ CO/CQ.
- Đội ngũ kỹ thuật chuyên nghiệp: Đội ngũ kỹ sư, thợ thi công được đào tạo bài bản, có kinh nghiệm thực chiến, đảm bảo mỗi công trình đều đạt chuẩn chất lượng cao nhất.
- Giá cả hợp lý: Chúng tôi tối ưu hóa quy trình, giảm thiểu chi phí phát sinh để mang đến mức giá cạnh tranh nhất trên thị trường.
- Dịch vụ tận tâm: Tư vấn miễn phí, hỗ trợ nhanh chóng tại địa phương, chính sách bảo hành, bảo trì dài hạn, giúp bạn hoàn toàn yên tâm.

Những công trình Tuấn Kiệt đã thực hiện thành công
Không chỉ dừng lại ở lời cam kết, chất lượng và uy tín của Tuấn Kiệt còn được chứng minh bằng rất nhiều dự án đã hoàn thành trên khắp cả nước. Bạn có thể tham khảo một số công trình tiêu biểu của chúng tôi để có cái nhìn trực quan và chính xác nhất về năng lực cũng như chất lượng sản phẩm.
- Dự án Tuấn Kiệt thiết kế và thi công khu xông hơi tại Hà Giang
- Dự án Tuấn Kiệt thi công khu xông hơi spa, khách sạn tại Thanh Hóa
- Tuấn Kiệt phân phối lắp đặt máy xông hơi, phòng xông hơi tại Yên Bái
Những thành công này là minh chứng rõ ràng nhất cho sự chuyên nghiệp, tận tâm và cam kết về chất lượng của chúng tôi.
Mọi thắc mắc hoặc yêu cầu báo giá chi tiết, vui lòng liên hệ hotline của Tuấn Kiệt để được tư vấn nhanh chóng và tận tình.
CÔNG TY CỔ PHẦN ĐẦU TƯ VÀ DỊCH VỤ TUẤN KIỆT
Showroom miền bắc: 19 Phạm Thận Duật – Cầu Giấy – Hà Nội
0936 091 666 – 0437.920.666
Showroom miền nam: 48 Tân Thới Nhất 5 – Q.12 – Tp. Hồ Chí Minh
0932 990 666 – 0932.830.666
Địa chỉ gửi hàng đổi/trả/bảo hành: Trung tâm xử lý đơn hàng – Số 19 Phạm Thận Duật, Cầu Giấy, Hà Nội.
Than phiền chất lượng xin vui lòng liên hệ hotline: 0986.061.069